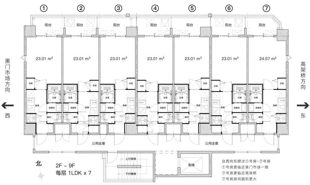
项目优势: 1.大阪核心商圈的稀缺地产,地价是三大商圏(梅田、难波、天王寺)的首位,涨幅空间巨大; 2.作为日本株式会社EK旗下在川旅宿的连锁公寓CHUANHOUSE,投入民宿运营,10年包租; 3.业主每年享有15天免费入住(其中5天可以是非业主)CHUANHOUSE连锁公寓;预定享受8.5折优惠; 4.买房达到指定额度,指导办理经营管理签证。 有实力的开发商和品牌运营商 有实力的开发商开发的土地往往是最稀有和最紧俏的,而品牌民宿有成熟的运营模式,能够保证稳定的游客源。 难波黑门1号是由日本株式会社EK和日本股份有限公司日成Advance联合开发的房产项目。日本株式会社EK是一家日本的不动产经营公司,多年来专业做房产托管经营,涉及酒店、住宅、文旅等多种形态,目前在关西地区运营的房源数量近千间,经营成绩位居大阪前列。同时还获得了中国顶级风投机构的投资。 在川旅宿是株式会社EK旗下的旅宿品牌,也是日本关西地区最具连锁规模的合法民宿运营商。主要包括位于京都的「在川」系列高端町屋,以及位于大阪的CHUANHOUSE系列连锁公寓。 CHUANHOUSE是大阪都市圈的连锁自助式公寓品牌,也是大阪首批拥有合法资质的民宿品牌,难波黑门1号项目就是作为CHUANHOUSE公寓运营。目前已开业的包括玉造、花园町、花园町别馆、惠美须町、心斋桥西、心斋桥、美国村、道顿堀等店,覆盖大阪最核心的商业区。所有的房间都包含客厅、卧室、阳台、厨房、独立卫浴等空间,改变了普通酒店客房的局限性。成为大阪超受欢迎的住宿品牌,8家分店都获得全球酒店预订网站授予的“好评住宿奖”。 地段好 步行3分钟到黑门市场 地铁15分钟到天阁、心斋桥 地铁25分钟到梅田 地铁30分钟可以到大阪城公园、环球影城 难波黑门1号位于黄金地带难波商圈,难波商圈是大阪最繁华热闹、也是最本土化的商圈,距离项目只需要步行5分钟。另外,项目周边有3条核心地铁,交通便利,步行3分钟到黑门市场,坐地铁15分钟可以到达通天阁和心斋桥,25分钟到梅田,30分钟可以到大阪城公园或环球影城。前往京都、神户、奈良等人气观光景点都非常方便。 周边配套齐全 项目周边大型超市、便利店、公园、写字楼、医院、学校等配套设施齐全,有很多可以逛吃的地方,各色购物中心和特色店铺,各种人气打卡景点和网红美食。比如美食去道顿堀、黑门市场、难波八坂神社、法善寺横丁,逛街去难波城、丸井百货、高岛屋、日本桥电器街、心斋桥商业街等。 主力推荐户型样式 有完善的电梯、消防、安保、密码门禁系统,24小时在线管家。家庭式的房型设计,包括卧室、卫生间、浴室、独立厨房及阳台。房间设计合理,未来转手卖出也能吸引日本本地人。 大阪黄金眼•难波黑门1号,处于大阪的黄金地带难波商圈。所谓“得商圈者得天下”,难波商圈能够比肩纽约曼哈顿、北京国贸CBD,是大阪最本土化、也是人气最旺的商圈,以难波站为中心辐射心斋桥、道顿堀和日本桥。交通四通八达,生活便捷,是游客必来的购物、美食圣地,也是住宿下榻的不二之选。 从关西机场乘坐南海电铁到难波站,中间经停10个车站,大概需要44分钟左右。我从难波站出来,步行了大概5分钟左右,在看到第2家FamilyMart的时候就到难波黑门1号项目啦。 站在楼下的路口处,可以看到去黑门市场的标识,只需要步行3分钟,对于未来在这里居住的游客来说可是太方便了。而且从项目到惠美须、日本桥也都十分的近,方便去买物美价廉的电器,体验日本的动漫文化。 周边有3条核心地铁,直达很多主流景点。坐地铁15分钟可以到达通天阁和心斋桥,25分钟到梅田,30分钟可以到大阪城公园或环球影城。周边有很多可以逛吃的地方,各色购物中心和特色店铺,以及各种人气打卡景点和网红美食。 在日本投资民宿,买在商圈或CBD附近,生活便捷,会吸引很多游客,不用担心入住率的问题。难波商圈是中央区里地价增幅最大的区域,去年地价的增长率就接近20%,未来几年前景也很乐观。 难波黑门1号项目一共有9层楼,每层7户,户型都是带客厅、厨房和卫生间的单间公寓,面积在23㎡到25㎡之间。我参观了样板间,一进门就可以看到带冰箱、微波炉、小灶台的厨房,住客能够在这里做一些简餐,很有家的感觉,这也是一般酒店项目没有的部分。厨房对面是卫生间,马桶和洗浴是干湿分离的,方便两个人同时使用,并且标配全自动马桶,使用起来既简单、又干净。 我在卫生间发现了一些有趣的地方,一个是淋浴都会安装高、低两个位置,方便大人和小朋友使用;另外,浴室小镜子的位置比较低,因为日本人比较习惯坐着洗澡,这个高度正好可以看到全身。 接下来是客厅和卧室,就像是国内的小开间,大概10㎡左右,有衣柜、双人沙发和1.5m*2m的双人床,还有统一的电视、空调等设备。阳台大概有4㎡,每户都安装了避难通道。整体看来,房间的设计巧妙合理,物尽其用,不会让人觉得很拥挤,同时又符合日本人的审美和生活习惯,保证未来房子出手的时候也会吸引本地人购买。 一套房子的价格在2880万日元起,约合194万人民币。未来将作为CHUANHOUSE连锁民宿运营,包租10年,每年的回报率在6%左右。另外,业主还能享受每年15天免费入住CHUANHOUSE旗下连锁公寓的特权,预定CHUANHOUSE连锁公寓享受8.5折优惠。达到一定购买额度还可以指导办理经营管理签证。 当然,还有重要的一点就是开发商和运营商的实力,难波黑门1号是由日本知名开发商株式会社EK和日本股份有限公司日成Advance共同开发设计,由关西地区最具连锁规模的民宿运营商-在川旅宿运营,资质非常有保障。 (楼盘编号:RD05) 联系我们,电话:;还可添加置业顾问威信,获取项目楼书:zxy390006247
















